
Sauce
Flexible y consolidado.
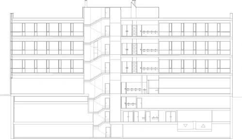
Flexible y consolidado, el Edificio Sauce cuenta con tres plantas que se adaptan a las necesidades más exigentes. Con una planta tipo de 1.260 m² y un total de 9.200 m², ofrece espacios amplios y funcionales. Cada rincón ha sido diseñado con materiales de máxima calidad. Ideal para proyectos que buscan solidez y adaptabilidad.

Descubre
Planos del edificio
Total
7.460 m2

Planta tipo
1.260 m2

Altillo
66 m2

Planta baja
944 m2

Planta
11.879 m2

Descubre
El Parque Empresarial Arboretum²
Mucho más que cinco edificios de oficinas.
42.000 m2 diseñados para hacer crecer tu negocio y tu bienestar.

















